Design Services
The day has finally come and you have agreed to purchase or lease your dream restaurants building and now it is time to get to work! Like with many other projects in life preparation is key and to really get the most out of your space before just throwing pieces of equipment in it are to speak to someone with decades of experience in layout and design for commercial kitchens. That is where Chef Supply comes in, with our in-house AutoCad design team with over 30+ years of experience we are here to help you feel comfortable and get your ideas on paper in a fluid, precise way with correct measurements so that you can maximize every square inch of your property. Here at Chef Supply, we understand the questions to ask and the factors to consider. We have an extensive history in many concepts including but not limited to, restaurants, assisted living & rehabilitation facilities, churches, schools, hospitals, bars and many more.
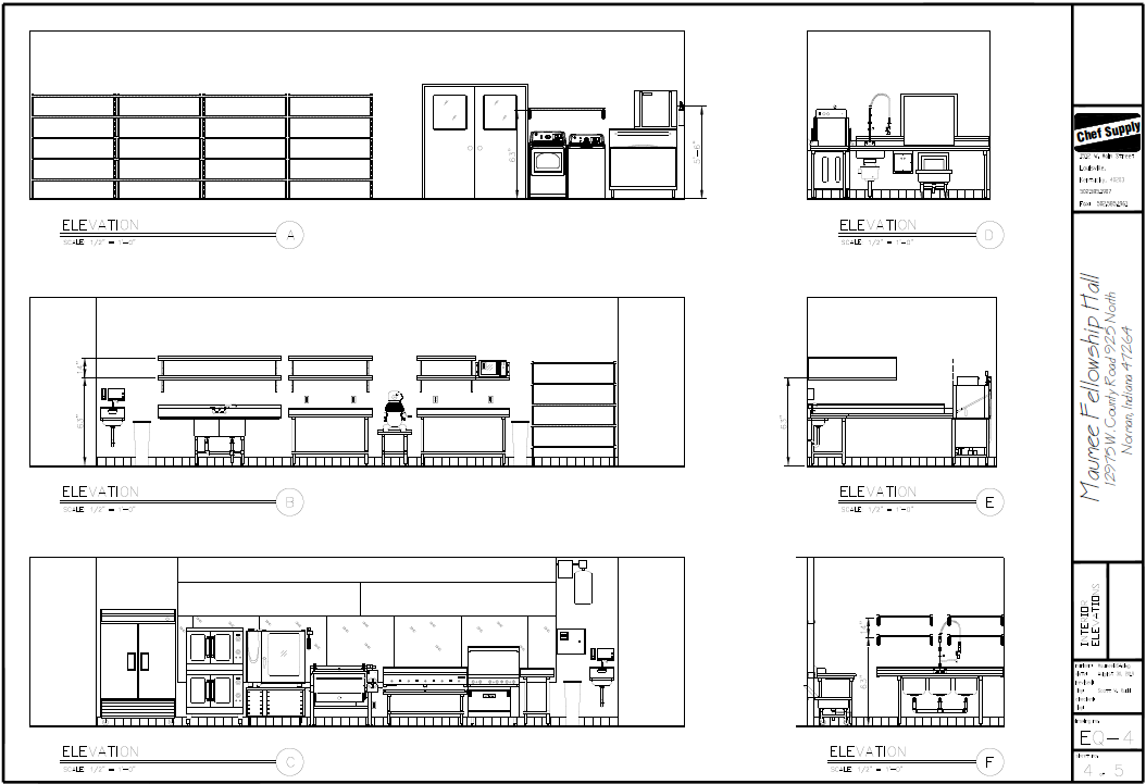
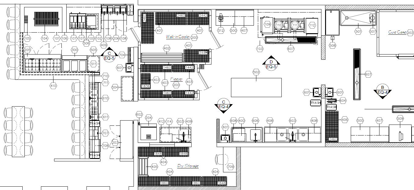
Our comprehensive project management includes consultation with industry experts who work with you for the kitchen design, equipment selection and specifications, and permitting, while following all mechanical and health department regulations. We use the latest AutoCAD technology and equipment advancements to make sure your food service or restaurant kitchen design is exactly to your specifications and vision for your concept.
We offer detailed drawings based on your concept, business plan, space, and budget. Each commercial kitchen design plan includes equipment specs on walk-ins, exhaust hood systems, cook line equipment, and refrigeration, with detail on rough-ins for electrical and plumbing as required for both architects & contractors.
Our services are not limited to just commercial kitchen design. We work from concept to completion with design, equipment, and installation services. We partner with you every step of the way to make food service easier, enjoyable and ultimately more profitable.
Don't hesitate to reach out and ask about our services at 502-585-1907 or Sales@Chefsupply.com as we look forward to hearing from you!
